Wertermittlung Sporthalle
Wertermittlung einer Sporthalle zur Vermögensübersicht, inkl. Erbbaurecht
Reutlingen, 2025
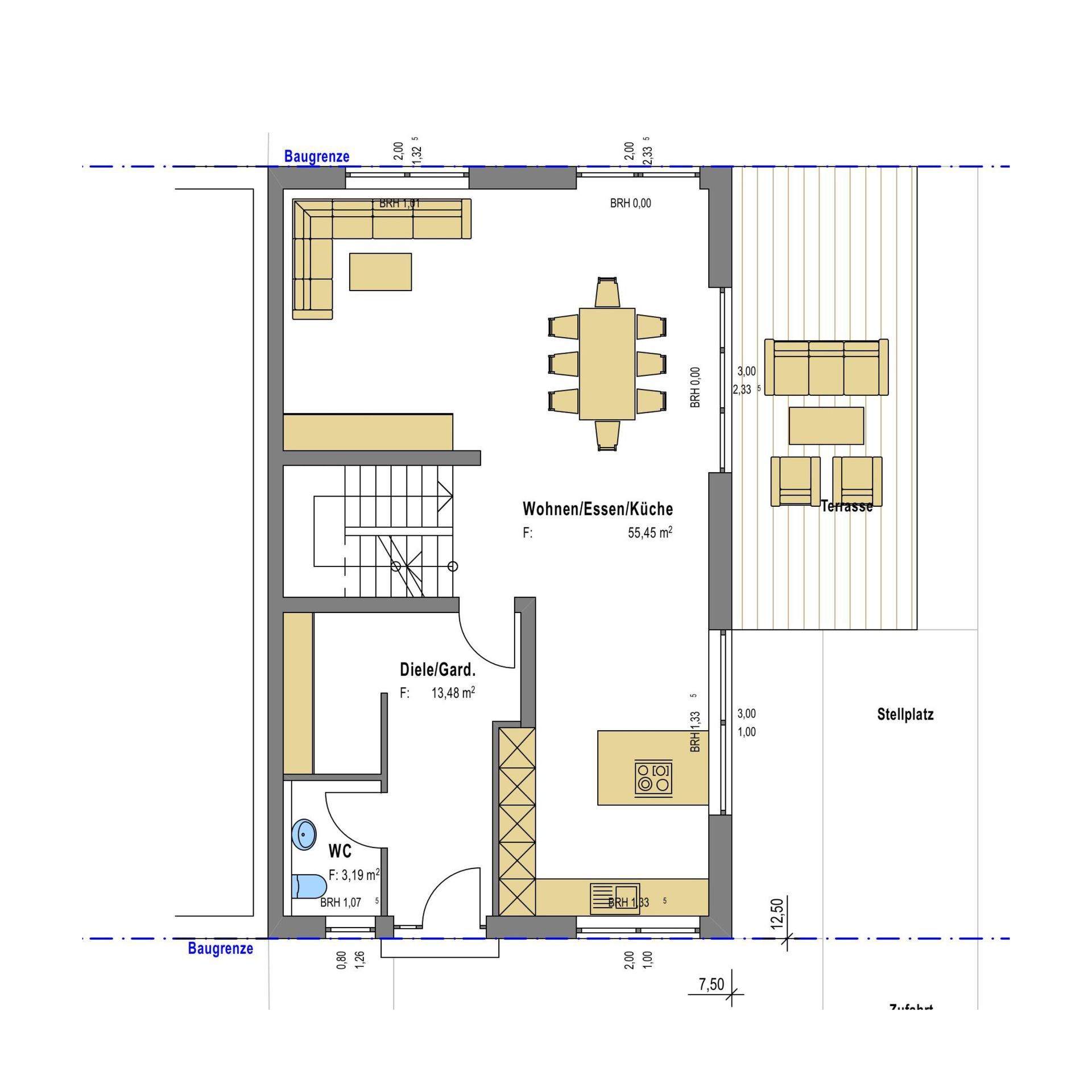
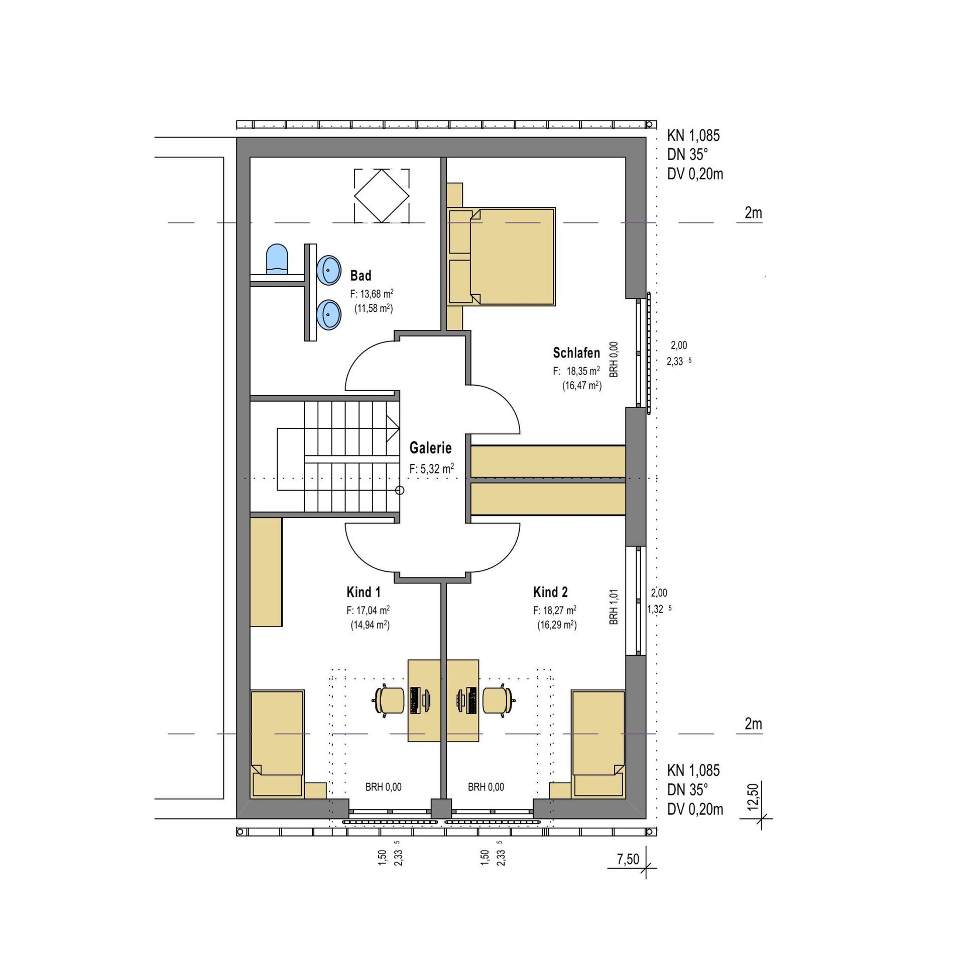
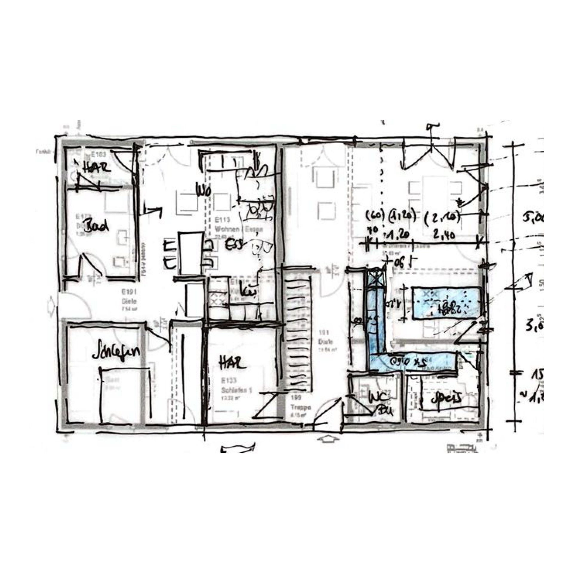
Doppelhaus GÖ37
Neubau eines Doppelhauses
Kreis Reutlingen, Entwurfsphase 2025,
Projektierung in 2026 geplant
Wertermittlung Einfamilienhaus
Wertermittlung eines Einfamilienhauses für Erbauseinandersetzung
Kreis Reutlingen, 2025
Beratung EFH Kobe
Beratung der Grundrissgestaltung für ein Einfamilienhaus im Zuge des Hauskaufs eines Fertighausherstellers
Kohlberg, 2025
Wertermittlung Eigentumswohnung
Wertermittlung einer Eigentumswohnung für Erbauseinandersetzung
Kreis Reutlingen, 2025
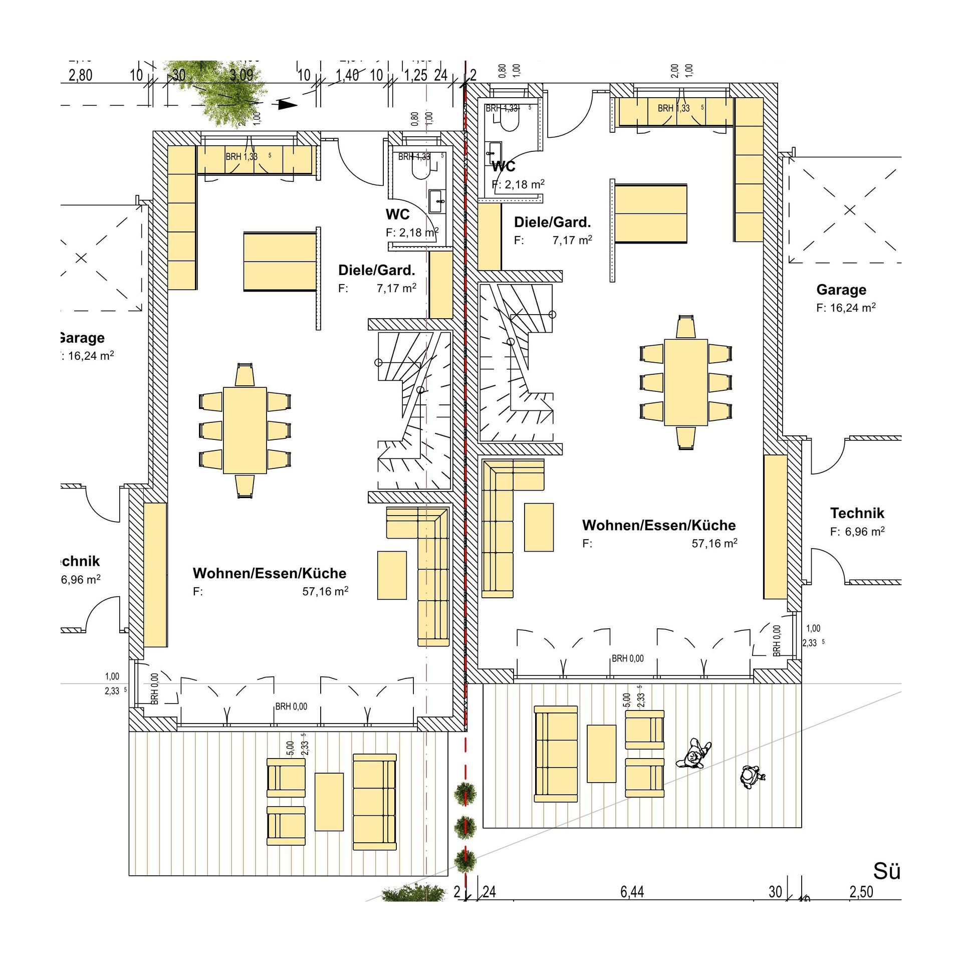
Doppelhaushälfte BAWO
Neubau eine Doppelhaushälfte
Kreis Esslingen, Entwurfsphase 2025,
Projektierung in 2026 geplant
Mietwertgutachten Eigentumswohnung
Mietwertermittlung einer Eigentumswohnung zur Weitervermietung
Stadt Reutlingen, 2025
Anbau S3O
Anbau an ein Einfamilienhaus zur Wohnraumerweiterung
Kreis Haigerloch, 2024
Haus TW16
Neubau Einfamilienhaus mit Einliegerwohnung
Neuffen, Baujahr 2017/18
Wertermittlung Reihenmittelhaus
Wertermittlung eines Reihenmittelhauses wegen Veräußerungsabsicht
Kreis Reutlingen, 2024
Haus JJ5
Neubau Zweifamilienhaus
Frickenhausen, Baujahr 2007
Anbau Dachgaube, Bauantrag 2021
Haus JD17
Neubau Einfamilienhaus mit Einliegerwohnung
Tischardt, Baujahr 2022
Projektierung Ärztehaus
Machbarkeitsstudie für ein Ärztehaus
Kreis Esslingen, 2022
Wohnen am Ersberg
Studie für ein Apartmenthaus
Nürtingen, 2020
Wertermittlung + Sanierungskonzept Zweifamilienhaus
Wertermittlung inkl. Restnutzungsdauergutachten eines Zweifamilienhauses, Erstellung eines Modernisierungs- und Sanierungskonzepts inkl. Begleitung der Umsetzung
Kreis Karlsruhe, 2024/25

